
Projekt von
Lea Marzinzik
Begleitung
Dieter Dietz, Pier Vittorio Aureli
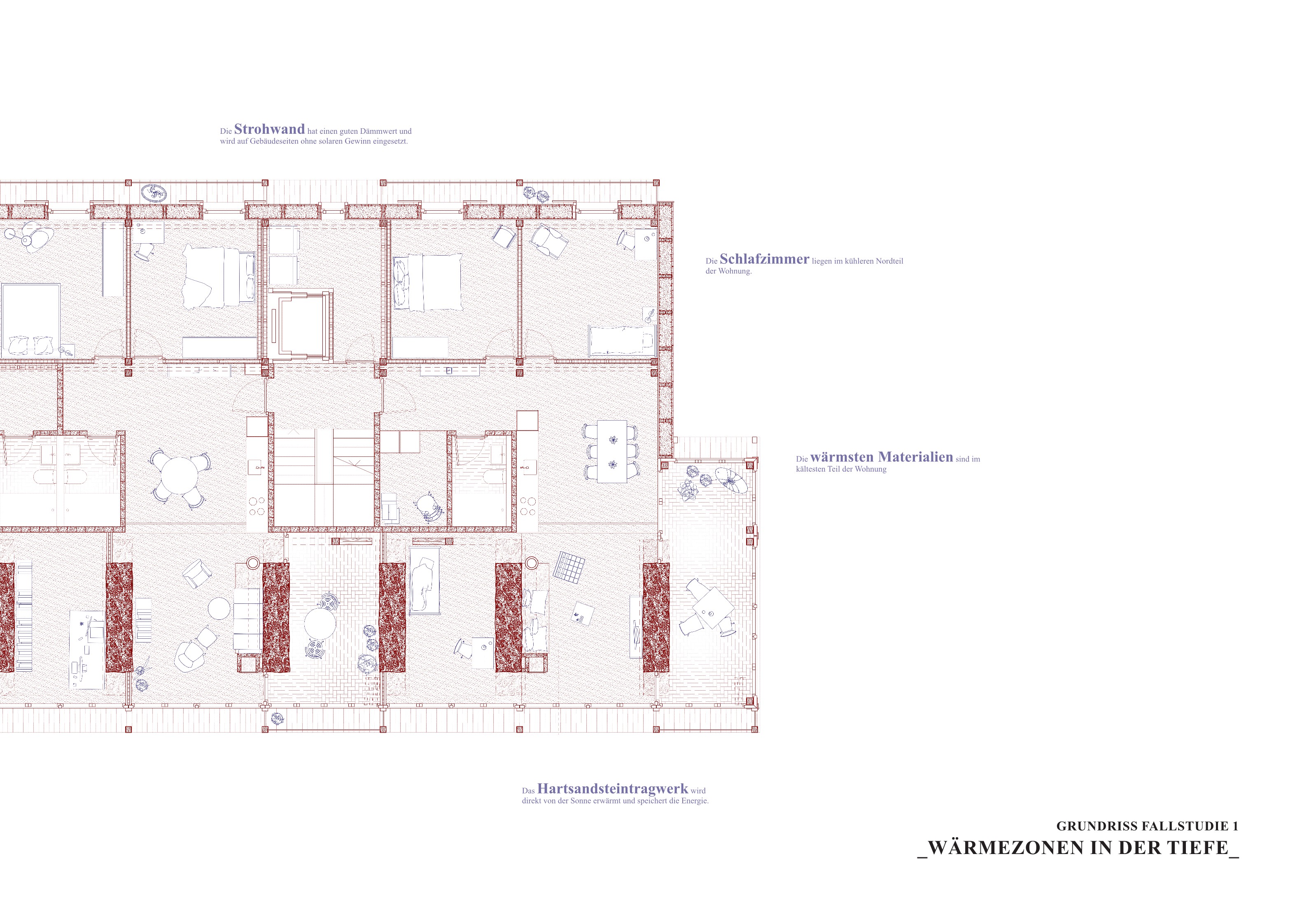
Single-family homes are among the most common domestic architectures in Germany. As a basis for this project, the theoretical statement The Boundaries of Labor which examines domestic space in the crisis of (elderly) care, identifies single-family homes as the place where the current crisis becomes most evident. They conceal the work of (mostly female) caregivers and isolate those that depend on care. Drawing on research and conversations with caregivers, the project proposes scenarios that examine potentials for transformation in a single-family home neighborhood in Borken, Germany, over the next 30 years. Differing in scale, these interventions mean to facilitate social connectivity, mutual aid, civility and adaptability for changing life circumstances of the residents. The aim is to create an architecture which considers the (affective) relations that residents form with their surroundings—by fostering social and cultural acceptance as well as an increased visibility of aging.